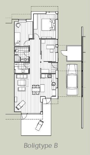
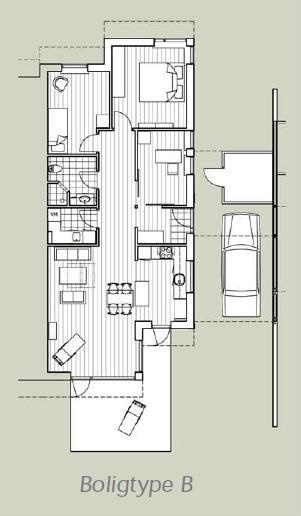
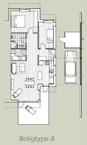
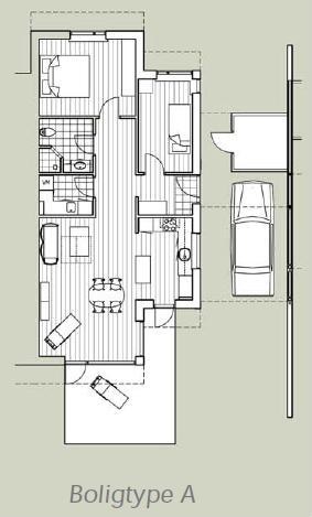
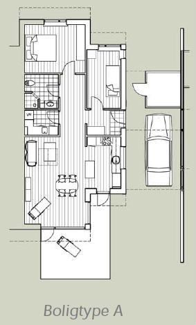
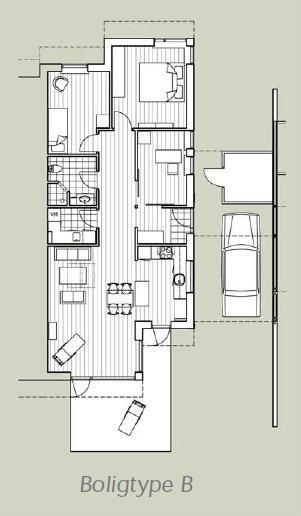
Boligtyper

I andelsboligforeningen findes der tre forskellige boligtyper.

A og B er i et plan, mens C er i to plan.
Alle typer har carport, redskabsskur, terrasse og egen have.